중고 EGI휀스 가격 / 중고 가설방음벽 / EGI강판 / 이지아이휀스 / 비산먼지 공사현장 소음 가림막펜스 신재 판매합니다.

EGI 휀스는
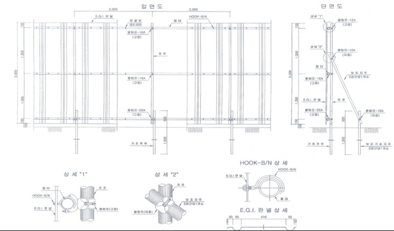
냉연강판를 전기작용에 의하여 아연도금한 강판으로 EGI 전기아연도금 강판이라고 합니다.
두께는 0.45t ~ 1.0t로 길이 1.8m, 2.0m, 2.4m, 3.0m, 4.0m로 제작 가능합니다.
폭은 530mm로 100m 설치시 대략 200장이 소요됩니다.

중고 EGI휀스 가격 / 중고 가설방음벽 / EGI강판 / 이지아이휀스 / 비산먼지 공사현장 소음 가림막펜스 신재 판매합니다.


중고 EGI휀스 가격 / 중고 가설방음벽 / EGI강판 / 이지아이휀스 / 비산먼지 공사현장 소음 가림막펜스 신재 판매합니다.
공사현장의 출입통제,
비산먼지 차단, 보행자 통행확보 및 사고 방지, 저렴한 비용 및 간단한 시공 가능,
안전한 작업, 높은 내구성과 안정성, 다양한 활용 가능합니다.
EGI 휀스, 이지아이휀스 규격
EGI 휀스, 이지아이휀스 규격
530mm * 0.4T ~ 1.0T (H 1.8m ~ 4.0m)






중고 EGI휀스 가격 / 중고 가설방음벽 / EGI강판 / 이지아이휀스 / 비산먼지 공사현장 소음 가림막펜스 신재 판매합니다.
신재 및 중고 저렴하게 공급해드리고 있습니다.




|
![]()
|
견적문의
Mobile. 010-5300-9609 Office. 070-7886-7778 Fax. 070-7610-2336
E-mail. sgro88@naver.com
입출고 시간
(공휴일 및 일요일 휴무)
평 일 AM 08:30 ~ PM 17:30
토요일 AM 09:00 ~ PM 11:30
|
