중고 EGI휀스(펜스) 가격 EGI휀스 규격(두께 높이) 전기아연도금강판(EGI) 신재 판매합니다.

EGI 휀스는
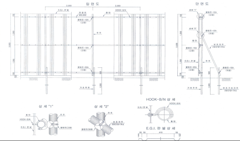
냉연강판를 전기작용에 의하여 아연도금한 강판으로 EGI 전기아연도금 강판이라고 합니다.
두께는 0.45t ~ 1.0t로 길이 1.8m, 2.0m, 2.4m, 3.0m, 4.0m로 제작 가능합니다.
폭은 530mm로 100m 설치시 대략 200장이 소요됩니다.

중고 EGI휀스(펜스) 가격 EGI휀스 규격(두께 높이) 전기아연도금강판(EGI) 신재 판매합니다.


중고 EGI휀스(펜스) 가격 EGI휀스 규격(두께 높이) 전기아연도금강판(EGI) 신재 판매합니다.
공사현장의 출입통제,
비산먼지 차단, 보행자 통행확보 및 사고 방지, 저렴한 비용 및 간단한 시공 가능,
안전한 작업, 높은 내구성과 안정성, 다양한 활용 가능합니다.

EGI 휀스, 이지아이휀스 규격
530mm * 0.4T ~ 0.8T (H 1.8m ~ 4.0m)





중고 EGI휀스(펜스) 가격 EGI휀스 규격(두께 높이) 전기아연도금강판(EGI) 신재 판매합니다.



|
![]()
|
견적문의
Mobile. 010-5300-9609 Office. 070-7886-7778 Fax. 070-7610-2336
E-mail. sgro88@naver.com
입출고 시간
(공휴일 및 일요일 휴무)
평 일 AM 08:30 ~ PM 17:30
토요일 AM 09:00 ~ PM 11:30
|
'가설재 판매 > EGI휀스, RPP방음, 가설방음판' 카테고리의 다른 글
| RPP방음판 매매 RPP타공흡음방음판 가격 RPP방음판 구매 건설현장가설방음벽 PVC플라스틱판넬 판매 (0) | 2024.08.20 |
|---|---|
| 중고 EGI휀스(펜스) 가격 EGI휀스 규격(두께 높이) 전기아연도금강판(EGI) 신재 판매 (0) | 2024.08.20 |
| 중고가설방음벽종류 RPP타공방음판가격 재생플라스틱판넬 RPP흡음방음판 RPP차음판 RPP휀스(펜스) 판매 (0) | 2024.08.14 |
| 중고 가설방음벽 가격(단가) RPP타공방음판 재생플라스틱판넬방음벽 RPP흡음방음판 판매 (1) | 2024.07.23 |
| 중고 EGI휀스 4m 3m 2.4m 2m 1.8m 가격(단가), EGI휀스 규격(두께), EGI휀스 구조검토, 전기아연도금강판(EGI펜스) 신재 판매 (0) | 2024.07.23 |
