중고 가설펜스 가격 가설방음판 EGI강판 EGI패널 EGI철판 이지아이휀스 신재 판매합니다.

EGI 휀스는
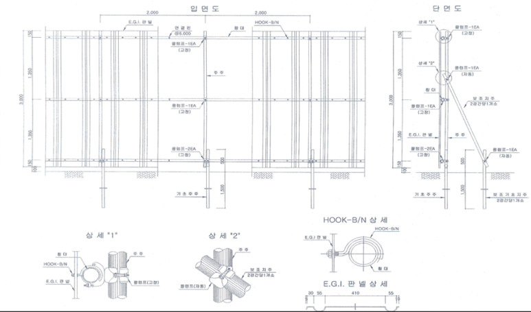
냉연강판를 전기작용에 의하여 아연도금한 강판으로 EGI 전기아연도금 강판이라고 합니다.
두께는 0.45t ~ 1.0t로 길이 1.8m, 2.0m, 2.4m, 3.0m, 4.0m로 제작 가능합니다.
폭은 530mm로 100m 설치시 대략 200장이 소요됩니다.

중고 가설펜스 가격 가설방음판 EGI강판 EGI패널 EGI철판 이지아이휀스 신재 판매합니다.


중고 가설펜스 가격 가설방음판 EGI강판 EGI패널 EGI철판 이지아이휀스 신재 판매합니다.
공사현장의 출입통제,
비산먼지 차단, 보행자 통행확보 및 사고 방지, 저렴한 비용 및 간단한 시공 가능,
안전한 작업, 높은 내구성과 안정성, 다양한 활용 가능합니다.

EGI 휀스, 이지아이휀스 규격
530mm * 0.4T ~ 0.8T (H 1.8m ~ 4.0m)





중고 가설펜스 가격 가설방음판 EGI강판 EGI패널 EGI철판 이지아이휀스 신재 판매합니다.



|    | 견적문의 Mobile. 010-5300-9609 Office. 070-7886-7778 Fax.      070-7610-2336 E-mail. sgro88@naver.com  입출고 시간 (공휴일 및 일요일 휴무) 평    일  AM 08:30 ~ PM 17:30 토요일  AM 09:00 ~ PM 11:30 | 
'가설재 판매 > EGI휀스, RPP방음, 가설방음판' 카테고리의 다른 글
| 중고 RPP타공방음판 가격 가설방음벽 단가 RPP차음판 플라스틱판넬 신재 RPP흡음판 RPP휀스(펜스) 홀딩도어 양개도어 가설문 판매 (1) | 2024.12.09 | 
|---|---|
| EGI휀스란 EGI휀스 가격 중고 EGI펜스 EGI휀스 규격 가설방음벽 단가 중고 EGI휀스 판매 (0) | 2024.12.09 | 
| 중고 가설방음벽 단가 RPP방음판 RPP차음판 가격 플라스틱판넬 RPP흡음판 RPP휀스(펜스) 신재 판매 (0) | 2024.12.04 | 
| EGI(전기아연도금강판)이란? 가설방음벽 EGI강판 EGI휀스 홀딩도어 EGI철판 패널 판매 (0) | 2024.11.21 | 
| 중고 RPP방음판 가격(단가) 플라스틱가설방음벽 RPP방음휀스 판매 (0) | 2024.11.21 |