가설재 판매/EGI휀스, RPP방음, 가설방음판

가설 방음벽, 먼지, 공사현장 가림막, RPP 방음벽 500mm 폭, 흡음판, 차음판, 가격, 이지아이(EGI) 휀스,신재 주문 제작 판매합니다.

디케이산업 / SG시스템 중고가설재 및 신재가설재판매 2021. 3. 18. 19:31

가설 방음벽, 먼지, 공사현장 가림막, RPP 방음벽 500mm 폭, 흡음판, 차음판, 가격, 이지아이(EGI) 휀스,신재 주문 제작 판매합니다.

공사 현장등과 같이 소음이나 날림먼지가 많이 발생하는 곳에 일시적으로 설치하는 PVC 재질의

가설 판넬입니다.


가설 방음벽, 먼지, 공사현장 가림막, RPP 방음벽 500mm 폭, 흡음판, 차음판, 가격, 이지아이(EGI) 휀스,신재 주문 제작 판매합니다.

RPP(Recycling Plastic Panel)

방음벽 (흡음형/차음형) 주문 제작 및 판매합니다.

RPP는 두가지 종류가 있으며, 소음의 흡음을 목적으로 설치하는 흡음형

차단을 목적으로 설치하는 차음형(흡음재 없음)으로 구분합니다.

주문 제작시 2~4일의 제작 기간이 소요됩니다.

RPP 방음벽

제품은 판넬, 양개 조이너로 구성되어 있으며, 설치 길이 및 높이로 M2당 단가 안내드립니다.

RPP 방음판 규격 : 500mm * 35T

RPP 설치 사진

위 사진과 같이 4M 이상으로 RPP 설치시 주주로 빔을 사용하여야 합니다.

상담시 자세히 안내 드리겠습니다.


가설 방음벽, 이지아이(EGI) 휀스, RPP 방음벽, 흡음판, 차음판 신재 주문 제작 판매합니다.

EGI 휀스, 이지아이휀스

(전기아연도금강판 (EGI = Electro Galvanized Iron))

EGI휀스는 냉연강판를 전기작용에 의하여 아연도금한 강판으로 EGI 전기아연도금 강판이라고 합니다.

두께는 0.45t ~ 1.0t로 길이 1.8m, 2.0m, 2.4m, 3.0m, 4.0m로 제작 가능합니다.

​폭은 530mm로 100m 설치시 대략 200장이 소요됩니다.

제품특징

공사현장의 출입통제, 비산먼지 차단, 보행자 통행확보 및 사고 방지, 저렴한 비용 및 간단한 시공 가능, 안전한 작업, 높은 내구성과 안정성, 다양한 활용 가능합니다.

EGI 휀스, 이지아이휀스 규격

530mm * 0.5T ~ 1.0T

EGI 휀스 설치

EGI 휀스 설치

EGI 휀스

각 파이프는 단면이 단관 비계 파이프와 달리 원형이 아닌 사각형 형태의 파이프를 말합니다. 단관 비계 파이프와 같이 내구성이 강하여 건축용으로 현장에서 사용되며, 주로 유로폼 보강대로 많이 사용되며, 천장 공사나 슬라브 공사에 사용되는 자재입니다.

상담 전화 연결됩니다.

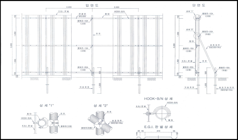
재료표

(H:3.0m * L:2.0m)

품명

규격

단위

비고

단관파이프(주주)

48.6 ø, 2.3T

3.0

M

단과파이프(보조주주)

48.6 ø, 2.3T

3.0

M

2경강단 1개소

단관파이프(횡대)

48.6 ø, 2.3T

6.0

M

단관파이프(말뚝)

48.6 ø, 2.3T

2.0

M

연결핀

48.6 ø 용

1

ea

크램프(고정)

48.6 ø 용

4

ea

크램프(자동)

48.6 ø 용

1

ea

EGI 휀스

3000mm * 530mm * 0.5T

4

B/N

EGI휀스 전용 (Bolt & Nut Set)

24

ea

※ 운임비는 착불이며, 구매하신 수량과 지역에 따라 가격이 상이합니다.


가설울타리의 종류

RPP(Recycling Plastic Panel) 방음벽 (흡음형/차음형)

방음판 재질이 재생플라스틱으로 구성되어 있으며 방음판 뒷면에 흡음판과 흡음제가 들어 있는 흡음형과 흡음판과 흠음제가 들어 있지 않은 차음형이 있다.

Steel 방음벽(흡음형)

방음판 재질이 철판으로 구성되어 있으며 방음판 가운데 흡음제가 들어있다.

EGI 휀스(차음형)

방음판 재질이 철판으로 구성되어 있으며 가설방음벽 뒷면에 흡음판과 흡음제가 들어 있지 않다

가설 울타리 종류

재질별 시공기준

구분

AL.

(알루미늄)

R.P.P.

(재생플라스틱)

ST’L

(스틸)

E.G.I.+분진망

(전기아연도금강판)

사진

 

 

 

 

방음

성능

소음감소량:12~15dB

소음감소량:8~9dB

소음감소량:8~9dB

방음효과 미흡

일반

규격

2000*500*95T

W:550, 35T(11T)

2000*500*30T

2400*530*0.8T

장점

-.방음성능 탁월

-.내구성/강성 우수

-.방음성능 우수

-.경량화로 작업용이

-.유지보수용이

(파손적음)

-.방음성능 우수

-.벽면 평활도 우수

(C.I.유리)

-.설치단가 저렴

-.설치/해체 용이

-.유지보수용이

(파손적음)

단점

-.설치단가 고가

-.설치/해체 복잡

-.유지보수 곤란

-.불에 약함

-.유지보수 곤란

(미관파손 많음)

-.방음성능 미흡

-.내구성 불리

(풍압에 약함)

출처 - 공종/건축공사/가설공사/가설울타리.txt · 마지막으로 수정됨: 2016/03/08 10:12 저자 bluetree


신재, 중고 강관 파이프, 비계 파이프, 단관 파이프, 아시바 파이프, 단관비계 파이프 6m, 4m, 3m, 2m, 1.5m, 1m 판매합니다.

중고 강관 파이프, 단관 비계, 아시바 파이프, 단관 파이프

강관 파이프, 단관 비계, 아시바 파이프, 단관 파이프의 특징

주택이나 저층건물 시공시 견출작업 및 외부 조적작업을 위해 사용되며, 도금 강판을 사용하여 뛰어난 부착성과 매끄러운 표면, 부식을 최대한 방지하고, 내구성이 뛰어납니다.

연결핀과 크램프로 단단하게 고정이 가능하여 안정성도 좋습니다. 조립 및 해체가 편리하고, 운반과 보관이 용이하여 경제성도 높습니다. 특수 도장 및 융융 아연 도금처리로 내구성 또한 뛰어납니다.

 

신재 강관 파이프, 단관 비계, 아시바 파이프, 단관 파이프

건설 현장에서 비계용, 농장, 과수원, 울타리, 비닐하우스등에서 지주등으로 다양하게 사용되고 있습니다.

※ 운임비는 착불이며, 구매하신 수량과 지역에 따라 가격이 상이하며,

신재일 경우 경기, 일부 충청권에 한해서 5밴딩 이상시 도착도 및 운임 지원 가능합니다.

상담 전화 연결됩니다.

강관 파이프,비계 파이프, 단관 파이프, 아시바 파이프, 단관비계 파이프 정면 사진

연결핀과 크램프로 단단하게 고정이 가능하여 안정성도 좋습니다. 조립 및 해체가 편리하고, 운반과 보관이 용이하여 경제성도 높습니다. 특수 도장 및 융융 아연 도금처리로 내구성 또한 뛰어납니다.

연결핀, 크램프 (고정, 자동)

아시바 파이프, 강관 파이프, 단관 파이프, 단관 비계 파이프 규격별 중량​

규격 (m)

6m

4m

3m

2m

1.5m

1m

중량 (kg)

15.8

10.5

7.9

5.3

4.0

2.6

밴딩

100 본

외경 (mm)

48.6 ø

두께 (mm)

2.3 t

아시바 파이프, 강관 파이프, 단관 파이프, 단관 비계 파이프 규격별 중량​

​아래 연락처로 연락 주시면 최선을 다하여 정성껏 안내드리겠습니다.


​상담문의 전화

언제나 문의 환영드립니다.

최선을 다하여 정성껏 안내드리겠습니다.

견적문의

SG시스템

Office. 070-7886-7778

Fax.    070-7610-2336

E-mail. sgro88@naver.com​

입출고 시간

(공휴일 및 일요일 휴무)

평  일 AM 08:00 ~ PM 17:30

토요일 AM 09:00 ~ PM 11:30

강재파이프서포트, KS F 8001,미니서포트, sps20, sps30, sps40, sps50 서포트, 중고 서포트, 동바리, Support, 서포트, 중고서포트, 강관파이프, 비계파이프, 단관파이프, 아시바파이프, 농업용파이프, 과수원파이프, 중고파이프가격, 서포트가격, 서포트단가, 각파이프, 각관파이프, 아연도금파이프, 파이프가격, 서포트v0, 미니서포트, 서포트v1, 서포트v2, 서포트v3, 서포트v4, 서포트v5, 서포트v6, 유로폼, 중고유로폼, 안전발판, EGI휀스,RPP방음벽, 이지아이휀스, 콘판넬, 목재, 각재, 일반합판, 36합판, 48합판, 태고합판, 오비끼, 투바이, 다루끼, 틀비계, BT아시바, 난간대수직, 난간대가새, 비티수직틀, 비티가새, 비티계단, 안고리, 전도방지대, 비티핀, 비티바퀴, 비티사다리, 수직사다리, 안전발판, 유공발판, 족장발판, 400발판, 500발판, 250*1829, 400*1829, 500*1829, 400*3000 무고리 안전발판, 해치발판, 중고안전발판, 단관파이프, 아시바파이프, 강관파이프, 연결핀, 크램프, 자동크램프, 고정크램프, 유로폼, 중고 유로폼, 쇼트폼 유로폼, 미다시 유로폼, 상토목 유로폼, 6012유로폼, 6015유로폼, 6090유로폼, 6060유로폼, 성창합판 유로포, 선우드 합판 유로폼, 유로폼 주문 제작, 국산합판 유로폼, 프로파일, 보강대, 삼각빠찌, 일반합판, 미송합판, 자작나무합판, 내부마감재, 낙엽송합판, 코아합판, mdf,​OSB합판, 태고합판, 내수합판, 준내수합판, 보양재합판, 바닥재합판, 목공용합판, 인테리어합판, 건축내장용, 베트남합판, 남양재합판, 36합판, 48합판, 스베자, 소송한치각, 소할재, 한치각, 12자 각재, 9자 각재, 정재다루끼, 승고각, 준미다시유로폼, 각파이프 6m, 각관파이프 6m, 아연도금파이프 6m, 각파이프 4m, 각관파이프 4m, 아연도금파이프 4m, 각파이프 3m, 각관파이프 3m, 아연도금파이프 3m, 각파이프 2m, 각관파이프 2m, 아연도금파이프 2m, 각파이프 1m, 각관파이프 1m, 아연도금파이프 1m

가설 방음벽, 먼지, 공사현장 가림막, RPP 방음벽 500mm 폭, 흡음판, 차음판, 가격, 이지아이(EGI) 휀스,신재 주문 제작 판매합니다.