이지아이(EGI) 휀스 530mm 가격, 먼지, 공사현장 가림막, 가설방음 RPP 방음판 500mm 폭, 6m, 4m, 3m, 2.4m, 2m, 1.8m 신재 주문 제작 판매합니다.
EGI휀스는 냉연강판를 전기작용에 의하여 아연도금한 강판으로 EGI 전기아연도금 강판이라고 합니다.
두께는 0.45t ~ 1.0t로 길이 1.8m, 2.0m, 2.4m, 3.0m, 4.0m로 제작 가능합니다.
폭은 530mm로 100m 설치시 대략 200장이 소요됩니다.
이지아이(EGI) 휀스 530mm 가격, 먼지, 공사현장 가림막, 가설방음 RPP 방음판 500mm 폭, 6m, 4m, 3m, 2.4m, 2m, 1.8m 신재 주문 제작 판매합니다.
EGI 휀스, 이지아이휀스
(전기아연도금강판 (EGI = Electro Galvanized Iron))
제품특징
공사현장의 출입통제, 비산먼지 차단, 보행자 통행확보 및 사고 방지, 저렴한 비용 및 간단한 시공 가능, 안전한 작업, 높은 내구성과 안정성, 다양한 활용 가능합니다.
EGI 휀스, 이지아이휀스 규격
530mm * 0.5T ~ 1.0T
이지아이(EGI) 휀스 설치
EGI 휀스 설치
EGI 휀스
EGI 휀스 고리 셋트(볼트 & 너트)
각 파이프는 단면이 단관 비계 파이프와 달리 원형이 아닌 사각형 형태의 파이프를 말합니다. 단관 비계 파이프와 같이 내구성이 강하여 건축용으로 현장에서 사용되며, 주로 유로폼 보강대로 많이 사용되며, 천장 공사나 슬라브 공사에 사용되는 자재입니다.
상담 전화 연결됩니다.
EGI휀스 & 아시바 파이프 출고사진
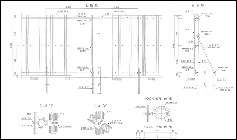
재료표
(H:3.0m * L:2.0m) |
||||
품명 |
규격 |
단위 |
비고 |
|
단관파이프(주주) |
48.6 ø, 2.3T |
3.0 |
M |
|
단과파이프(보조주주) |
48.6 ø, 2.3T |
3.0 |
M |
2경강단 1개소 |
단관파이프(횡대) |
48.6 ø, 2.3T |
6.0 |
M |
|
단관파이프(말뚝) |
48.6 ø, 2.3T |
2.0 |
M |
|
연결핀 |
48.6 ø 용 |
1 |
ea |
|
크램프(고정) |
48.6 ø 용 |
4 |
ea |
|
크램프(자동) |
48.6 ø 용 |
1 |
ea |
|
EGI 휀스 |
3000mm * 530mm * 0.5T |
4 |
매 |
|
B/N |
EGI휀스 전용 (Bolt & Nut Set) |
24 |
ea |
|
※ 운임비는 착불이며, 구매하신 수량과 지역에 따라 가격이 상이합니다.
RPP(Recycling Plastic Panel)
방음벽 (흡음형/차음형) 주문 제작 및 판매합니다.
공사 현장등과 같이 소음이나 날림먼지가 많이 발생하는 곳에 일시적으로 설치하는 PVC 재질의
가설 판넬입니다.
RPP는 두가지 종류가 있으며, 소음의 흡음을 목적으로 설치하는 흡음형와
차단을 목적으로 설치하는 차음형(흡음재 없음)으로 구분합니다.
주문 제작시 2~4일의 제작 기간이 소요됩니다.
RPP 방음벽
제품은 판넬, 양개 조이너로 구성되어 있으며, 설치 길이 및 높이로 M2당 단가 안내드립니다.
RPP 방음판 규격 : 500mm * 35T
RPP 설치 사진
위 사진과 같이 4M 이상으로 RPP 설치시 주주로 빔을 사용하여야 합니다.
상담시 자세히 안내 드리겠습니다.
가설울타리의 종류
RPP(Recycling Plastic Panel) 방음벽 (흡음형/차음형)
방음판 재질이 재생플라스틱으로 구성되어 있으며 방음판 뒷면에 흡음판과 흡음제가 들어 있는 흡음형과 흡음판과 흠음제가 들어 있지 않은 차음형이 있다.
Steel 방음벽(흡음형)
방음판 재질이 철판으로 구성되어 있으며 방음판 가운데 흡음제가 들어있다.
EGI 휀스(차음형)
방음판 재질이 철판으로 구성되어 있으며 가설방음벽 뒷면에 흡음판과 흡음제가 들어 있지 않다
가설 울타리 종류
재질별 시공기준
구분 |
AL. (알루미늄) |
R.P.P. (재생플라스틱) |
ST’L (스틸) |
E.G.I.+분진망 (전기아연도금강판) |
사진 |
|
|
|
|
방음 성능 |
소음감소량:12~15dB |
소음감소량:8~9dB |
소음감소량:8~9dB |
방음효과 미흡 |
일반 규격 |
2000*500*95T |
W:550, 35T(11T) |
2000*500*30T |
2400*530*0.8T |
장점 |
-.방음성능 탁월 -.내구성/강성 우수 |
-.방음성능 우수 -.경량화로 작업용이 -.유지보수용이 (파손적음) |
-.방음성능 우수 -.벽면 평활도 우수 (C.I.유리) |
-.설치단가 저렴 -.설치/해체 용이 -.유지보수용이 (파손적음) |
단점 |
-.설치단가 고가 -.설치/해체 복잡 -.유지보수 곤란 |
-.불에 약함 |
-.유지보수 곤란 (미관파손 많음) |
-.방음성능 미흡 -.내구성 불리 (풍압에 약함) |
출처 - 공종/건축공사/가설공사/가설울타리.txt · 마지막으로 수정됨: 2016/03/08 10:12 저자 bluetree
신재, 중고 강관 파이프, 비계 파이프, 단관 파이프, 아시바 파이프, 단관비계 파이프 6m, 4m, 3m, 2m, 1.5m, 1m 판매합니다.
중고 강관 파이프, 단관 비계, 아시바 파이프, 단관 파이프
강관 파이프, 단관 비계, 아시바 파이프, 단관 파이프의 특징
주택이나 저층건물 시공시 견출작업 및 외부 조적작업을 위해 사용되며, 도금 강판을 사용하여 뛰어난 부착성과 매끄러운 표면, 부식을 최대한 방지하고, 내구성이 뛰어납니다.
연결핀과 크램프로 단단하게 고정이 가능하여 안정성도 좋습니다. 조립 및 해체가 편리하고, 운반과 보관이 용이하여 경제성도 높습니다. 특수 도장 및 융융 아연 도금처리로 내구성 또한 뛰어납니다.
신재 강관 파이프, 단관 비계, 아시바 파이프, 단관 파이프
건설 현장에서 비계용, 농장, 과수원, 울타리, 비닐하우스등에서 지주등으로 다양하게 사용되고 있습니다.
※ 운임비는 착불이며, 구매하신 수량과 지역에 따라 가격이 상이하며,
신재일 경우 경기, 일부 충청권에 한해서 5밴딩 이상시 도착도 및 운임 지원 가능합니다.
상담 전화 연결됩니다.
강관 파이프,비계 파이프, 단관 파이프, 아시바 파이프, 단관비계 파이프 정면 사진
연결핀과 크램프로 단단하게 고정이 가능하여 안정성도 좋습니다. 조립 및 해체가 편리하고, 운반과 보관이 용이하여 경제성도 높습니다. 특수 도장 및 융융 아연 도금처리로 내구성 또한 뛰어납니다.
연결핀, 크램프 (고정, 자동)
아시바 파이프, 강관 파이프, 단관 파이프, 단관 비계 파이프 규격별 중량
규격 (m) |
6m |
4m |
3m |
2m |
1.5m |
1m |
중량 (kg) |
15.8 |
10.5 |
7.9 |
5.3 |
4.0 |
2.6 |
밴딩 |
100 본 |
|||||
외경 (mm) |
48.6 ø |
|||||
두께 (mm) |
2.3 t |
|||||
아시바 파이프, 강관 파이프, 단관 파이프, 단관 비계 파이프 규격별 중량 |
아래 연락처로 연락 주시면 최선을 다하여 정성껏 안내드리겠습니다.
상담문의 전화
언제나 문의 환영드립니다.
최선을 다하여 정성껏 안내드리겠습니다.
견적문의
SG시스템
Office. 070-7886-7778
Fax. 070-7610-2336
E-mail. sgro88@naver.com
입출고 시간
(공휴일 및 일요일 휴무)
평 일 AM 08:00 ~ PM 17:30
토요일 AM 09:00 ~ PM 11:30
이지아이(EGI) 휀스 530mm 가격, 먼지, 공사현장 가림막, 가설방음 RPP 방음판 500mm 폭, 6m,4m,3m,2.4m,2m,1.8m 신재 주문 제작 판매합니다.
'가설재 판매 > EGI휀스, RPP방음, 가설방음판' 카테고리의 다른 글
RPP(Recycling Plastic Panel) 방음벽 (흡음형/차음형) 주문 제작 및 판매합니다. (0) | 2021.05.08 |
---|---|
가설 방음 판넬 EGI 휀스, 이지아이휀스, 4m, 3m, 2.4m, 2m, 1.8m, 방음벽, RPP 판매합니다. (0) | 2021.05.08 |
RPP 방음벽,흡음판, 차음판, 가격, 500mm 폭, 이지아이(EGI) 휀스,신재 주문 제작 판매합니다. (0) | 2021.04.30 |
방음가설벽 가격, 이지아이(EGI) 휀스, 4m, 3m, 2.4m, 2m, 1.8m, RPP 방음벽, 신재 주문 제작판매합니다. (0) | 2021.04.29 |
RPP(Recycling Plastic Panel) 방음벽 (흡음형/차음형) 주문 제작 및 판매합니다. (0) | 2021.04.29 |