중고 가설방음벽 RPP(알피피) 방음판, 차음판, 중고 EGI휀스 가격, 이지아이펜스 매매, EGI강판, 비산먼지, 공사현장 가림막 신재 판매합니다.
RPP(Recycling Plastic Panel)
공사 현장등과 같이 소음이나 날림먼지가 많이 발생하는 곳에 일시적으로 설치하는
PVC 재질의 가설 판넬입니다.
중고 가설방음벽 RPP(알피피) 방음판, 차음판, 중고 EGI휀스 가격, 이지아이펜스 매매, EGI강판, 비산먼지, 공사현장 가림막 신재 판매합니다.
중고 가설방음벽 RPP(알피피) 방음판, 차음판, 중고 EGI휀스 가격, 이지아이펜스 매매, EGI강판, 비산먼지, 공사현장 가림막 신재 판매합니다.
RPP(Recycling Plastic Panel)
방음벽 (흡음형/차음형) 주문 제작 및 판매합니다.
RPP는 두가지 종류가 있으며, 소음의 흡음을 목적으로 설치하는 흡음형와
차단을 목적으로 설치하는 차음형(흡음재 없음)으로 구분합니다.
주문 제작시 수량에 따라 3~7일의 제작 기간이 소요됩니다.
제품은 판넬, 양개 조이너로 구성되어 있으며, 설치 길이 및 높이로 M2당 단가 안내드립니다.
위 사진과 같이 4M 이상으로 RPP 설치시 주주로 빔을 사용하여야 합니다.
상담시 자세히 안내 드리겠습니다.
중고 가설방음벽 RPP(알피피) 방음판, 차음판, 중고 EGI휀스 가격, 이지아이펜스 매매, EGI강판, 비산먼지, 공사현장 가림막 신재 판매합니다.
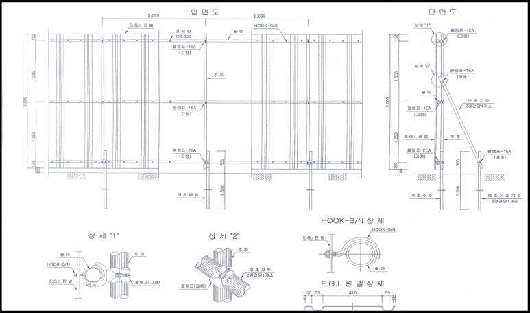
EGI 휀스, 이지아이휀스
(전기아연도금강판 (EGI = Electro Galvanized Iron))
EGI휀스는 냉연강판를 전기작용에 의하여 아연도금한 강판으로 EGI 전기아연도금 강판이라고 합니다.
두께는 0.45t ~ 1.0t로 길이 1.8m, 2.0m, 2.4m, 3.0m, 4.0m로 제작 가능합니다.
폭은 530mm로 100m 설치시 대략 200장이 소요됩니다.
제품특징
공사현장의 출입통제, 비산먼지 차단, 보행자 통행확보 및 사고 방지, 저렴한 비용 및 간단한 시공 가능, 안전한 작업, 높은 내구성과 안정성, 다양한 활용 가능합니다.
EGI 휀스, 이지아이휀스 규격
530mm * 0.5T ~ 1.0T

![]()
|
견적문의
Mobile. 010-5300-9609 Office. 070-7886-7778 Fax. 070-7610-2336
E-mail. sgro88@naver.com
입출고 시간
(공휴일 및 일요일 휴무)
평 일 AM 08:30 ~ PM 17:30
토요일 AM 09:00 ~ PM 11:30
|