중고 가설방음벽 EGI휀스 EGI강판 가격 이지아이휀스 비산먼지 공사현장 소음 가림막펜스 신재 판매합니다.
EGI 휀스는
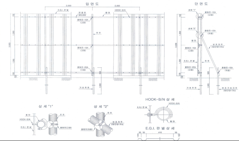
냉연강판를 전기작용에 의하여 아연도금한 강판으로 EGI 전기아연도금 강판이라고 합니다.
두께는 0.45t ~ 1.0t로 길이 1.8m, 2.0m, 2.4m, 3.0m, 4.0m로 제작 가능합니다.
폭은 530mm로 100m 설치시 대략 200장이 소요됩니다.
중고 가설방음벽 EGI휀스 EGI강판 가격 이지아이휀스 비산먼지 공사현장 소음 가림막펜스 신재 판매합니다.


중고 가설방음벽 EGI휀스 EGI강판 가격 이지아이휀스 비산먼지 공사현장 소음 가림막펜스 신재 판매합니다.
공사현장의 출입통제,
비산먼지 차단, 보행자 통행확보 및 사고 방지, 저렴한 비용 및 간단한 시공 가능,
안전한 작업, 높은 내구성과 안정성, 다양한 활용 가능합니다.
EGI 휀스, 이지아이휀스 규격
EGI 휀스, 이지아이휀스 규격
530mm * 0.4T ~ 1.0T (H 1.8m ~ 4.0m)





중고 가설방음벽 EGI휀스 EGI강판 가격 이지아이휀스 비산먼지 공사현장 소음 가림막펜스 신재 판매합니다.
신재 및 중고 저렴하게 공급해드리고 있습니다.
요즘 중고가 품귀라 재고 확보에 어려움이 있습니다.
전화 주시면 언제든지 상담해 드리겠습니다.





![]()
|
견적문의
Mobile. 010-5300-9609 Office. 070-7886-7778 Fax. 070-7610-2336
E-mail. sgro88@naver.com
입출고 시간
(공휴일 및 일요일 휴무)
평 일 AM 08:30 ~ PM 17:30
토요일 AM 09:00 ~ PM 11:30
|